Skip to content
Search Toggle
nhabe scholae
ABOUT
WORK
WRITING
Menu
Search for:
Submit
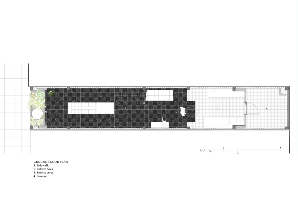
Bơ By Butterman Bakery
Year: 2024
Area: 160 m2
Status: Completed